现在的主人是一对年轻夫妇
他们希望室内拥有各种色调
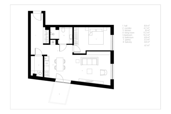
aKTA工作室帮助他们翻新了这间公寓
......ʕ •ᴥ• ʔ......
  


整个公寓均使用黑色金属,开放式厨房的绿色调橱柜和天花上倒置的T型灯,让小小的厨房区域拥有强而有力的氛围和质感
  
  
  
  
客厅配有天鹅绒蓝沙发和质感强烈的红色椅子,所有的墙壁都涂成灰色,黑色金属的坚硬细节被家具的色彩抵消,强烈的色彩又被一个平坦的背景中和,所谓“相得益彰”可能就是这个意思
  
  

主卧室里一面墙被漆成绿色,参考当地传统设计元素,在整个内部使用V形图案的木地板;浴室设有与厨房颜色匹配的橱柜,以及带肌理的白色瓷砖墙壁和精致的内饰
  
Photo:Leonas Garbačauskas
END